

HOWO NX 트럭 탑재형 크레인은 효율적인 인양 능력과 안정적인 운송 능력을 결합한 다목적 고하중 차량입니다. HOWO NX 8×4 섀시를 기반으로 제작되어 강력한 동력을 제공하며, Palfinger SPS40000 크레인을 탑재하여 최대 16톤의 인양 용량과 40톤미터의 인양 토크를 발휘합니다. 5단 텔레스코픽 붐은 최대 19미터까지 확장되고 360도 회전이 가능하여 도시 건설, 광업 등 다양한 분야에서 중장비 인양 및 자재 운송 작업에 폭넓게 활용할 수 있습니다.
작업 능력 :
16 tons객실 유형 :
HOWO NX치수(mm) :
12000×2550×3930구동 시스템 :
8×4휠베이스(mm) :
1800+4600+1350엔진별 :
371HP/WD615.47기어박스 :
HW19710앞 차축 (kg) :
6500/7000뒷축 (kg) :
17500/17500주목 :
XCMG crane, UNIC crane, knuckle boom crane is optionalHOWO NX 8×4 트럭 탑재형 크레인은 인양 및 운반 기능을 결합한 다기능 중장비 차량입니다. 최대 16톤의 인양 용량과 40톤미터의 인양 토크를 자랑하는 Palfinger SPS40000 크레인을 탑재하고 있습니다. 5단 텔레스코픽 붐은 최대 19미터까지 확장되며, 360도 회전 기능을 통해 다양한 인양 작업 환경에서 유연한 운용이 가능합니다. HOWO NX 시리즈 섀시를 기반으로 제작된 이 장비는 273kW 출력의 9.7리터 디젤 엔진과 10단 변속기, 그리고 공기 제동 시스템을 탑재하여 복잡한 작업 환경에서도 안정적인 성능을 보장합니다.
총중량 31톤, 적재함 내부 규격 8150 × 2450 × 600 mm로 장비 인양 및 건축 자재 운송 요구 사항을 모두 충족합니다. 아웃리거는 7.25미터의 전체 폭을 제공하여 작업 안정성을 보장합니다. HOWO 16톤 붐 크레인 트럭 이 장비는 특히 도시 건설 및 광산 작업에 적합합니다. 21.5미터의 양정 높이와 18.6미터의 최대 작업 반경을 갖추고 있어 중량물 인양과 중단거리 운반을 효율적으로 조화롭게 수행할 수 있습니다.

CS TRUCKS는 트럭 분야의 전문 제조업체입니다.
모든 제품은 새 제품이며 고품질임을 보장합니다.
»»Ⅰ.제품 정의 및 소개:
제조업체:CS 트럭
제품 특징
▶ 견고한 차체: HOWO 8×4 중형 차체를 기반으로 제작되었으며, 최대 40톤의 적재 용량을 자랑합니다.
▶ 강력한 엔진: SINOTRUK WD615.47 디젤 엔진 탑재, 371마력 출력, 9.726리터 배기량.
▶ 내구성 뛰어난 크레인: PALFINGER SPS40000 텔레스코픽 붐 크레인이 장착되어 있으며 최대 16톤까지 들어 올릴 수 있습니다.
▶ 대형 박스: 화물 박스의 크기는 8150×2450×600mm로, 대형 화물 운송에 적합합니다.
»» Ⅱ. HOWO NX 붐 크레인 제품 파라미터트럭:
| 차량 기술 매개변수 | |
| 제품명 | HOWO NX 트럭, Palfinger SPS40000 크레인 장착 |
| 차량 총중량(kg) | 31000 |
| 공차중량(kg) | 18660 |
| 전체 치수(mm) | 12000×2550×3930 |
| 휠베이스(mm) | 1800+4600+1350 |
| 최대 탑승객 수 | 3 |
| 접근/이탈 각도(°) | 17/11 |
| 전면/후면 오버행(mm) | 1550/2700 |
| 최대 주행 속도 (km/h) | 89 |
| 섀시 기술 매개변수 | |
| 섀시 모델 | HOWO NX |
| 엔진 모델 | WD615.47 |
| 연료 종류 | 디젤 |
| 실린더 개수 | 6 |
| 배수량 | 9.726리터 |
| 최대 출력 | 371마력(273kW) |
| 정격 속도 | 2200rpm |
| 최대 토크 | 1500N·m |
| 최대 토크에서의 속도 | 1100-1600rpm |
| 전염 | HW19710, 10단 변속기 |
| 전/후축 하중 | 6500/7000/17500 kg |
| 차축 수 | 4 |
| 판 스프링의 개수 | 11/11/12개 |
| 브레이크 | 에어 브레이크 |
| 타이어 크기 | 12.00R20 |
| 타이어 개수 | 12+1개 |
| 크레인 매개변수 | |
| 크레인 모델 | 팔핑거 SPS40000 |
| 최대 들어올림 무게 | 16,000kg |
| 최대 들어올리기 모멘트 | 40미터 |
| 최대의 아웃리치 | 18.6m |
| 최대 들어올림 높이 | 21.5미터 |
| 붐 시스템 길이(접었을 때) | 6.23m |
| 붐 시스템의 길이(완전히 펼쳤을 때) | 19m |
| 붐 섹션 수 | 5 |
| 작동 압력 | 32 MPa |
| 회전 각도 | 360도 완전 회전 |
| 아웃리거 스팬 (완전히 펼쳐진) | 7250mm |
| 화물 상자 매개변수 | |
| 상자 내부 치수(mm) | 8150×2450×600mm |
| 재료 | 탄소강 |
| 두께 | 바닥: 4mm; 벽: 3mm |

»» Ⅲ. 어떻게 섀시의 장점
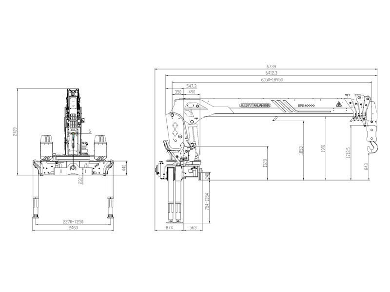
»» Ⅵ. Palfinger SPS40000 크레인 사양:
![]() | ![]() |
| 모델 | SPS40000 |
| 정격 양력 모멘트 | 40미터 |
| 정격 리프팅 용량 | 16000kg (2.5m) |
| 맥스 아웃리치 | 18.6m |
| 낚싯바늘의 최대 줄 수 | 6 |
| 선회각 | 마디 없는 |
| 붐 상승 각도 | 0 ~ 75° |
| 최대 인양 높이(아웃리거가 완전히 펼쳐진 후 지면으로부터 측정한 높이) | 21.5미터 |
| 붐 시스템 길이(접었을 때) | 6.23m |
| 붐 시스템의 길이(완전히 펼쳤을 때) | 19m |
| 붐 섹션 | 5 |
| 아웃리거 스팬(완전히 펼쳤을 때) | 7250(mm) |
| 권장 유량 | 80~110리터/분 |
| 작동 압력 | 32 MPa |
| 권장 오일 탱크 용량 | 300리터 |
| 크레인 모멘트(동적) | 913.8 kNm |
| 93.1미터 | |
| 비틀림 모멘트(동적) | 52.5kNm |
| 5.4미터 | |
| 크레인 중량 | 6000kg |
1. 우리는 그에 따라 디자인을 할 수 있습니다. 귀하의 요구사항에.
2. 저희는 여러분께 다음을 제공해 드릴 수 있습니다.고품질 & 합리적인 가격
3. 저희는 귀사에 제공할 수 있습니다.믿을 수 있는 사후 서비스
4. 우리는 가지고 있습니다숙련된 전문가 디자인 팀
5.신속한 배송. 모든 주문 환영합니다.
저희 CS TRUCKS는 모든 종류의 HOWO 특수 트럭 및 트레일러용 예비 부품(정품, OEM 및 교체 부품)을 할인된 가격과 높은 품질로 공급하여 고객의 트럭과 트레일러가 항상 최상의 작동 상태를 유지하도록 지원합니다.

SINOTRUK HOWO 수출용 중형 크레인 트럭

SINOTRUK HOWO 트럭 탑재형 크레인, 출고 준비 완료
메시지를 남겨주세요
스캔해서 위챗/왓츠앱으로 전송하세요 :